1. Änderung des Bebauungsplans „Dyckerhoff-Gelände“:
Bekanntmachung der Beteiligung der Öffentlichkeit gemäß § 3 Abs. 2 BauGB – geänderte Dauer der Offenlage
Der Gemeinderat der Gemeinde Budenheim hat in seiner Sitzung am 24.09.2025 beschlossen, den Entwurf der 1. Änderung des Bebauungsplans „Dyckerhoff-Gelände“ gemäß § 3 Abs. 2 BauGB sowie die wesentlichen, bereits vorliegenden umweltbezogenen Stellungnahmen öffentlich auszulegen.
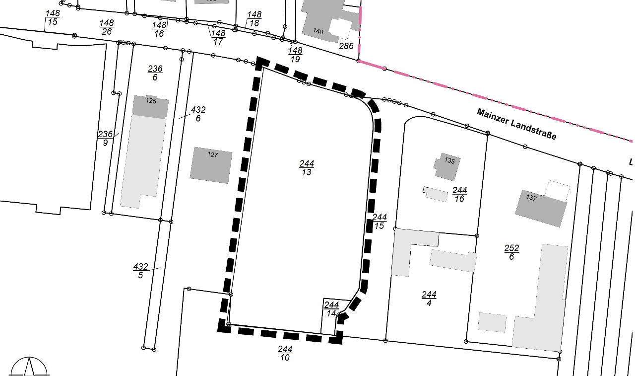
Plangebiet
Das Plangebiet (Änderungsbereich) befindet sich am östlichen Rand der Gemeinde Budenheim und liegt an der Mainzer Landstraße.
Das Plangebiet ist Teil des ehemaligen Steinbruchbetriebs und war eine Brachfläche. Inzwischen fanden auf Grundlage des rechtswirksamen Bebauungsplans bereits erste vorbereitende Baumaßnahmen statt, die im Gesamtzusammenhang mit der Reaktivierung des gesamten Dyckerhoff-Geländes erfolgen.
Das Plangebiet wird wie folgt begrenzt:
- Im Norden durch die Mainzer Landstraße,
- im Osten durch die Planstraße B des Bebauungsplans „Dyckerhoff-Gelände“,
- im Süden durch das Sondergebiet „Bodenbehandlungsanlage“ des Bebauungsplans „Dyckerhoff-Gelände“ und
- im Westen durch das Mischgebiet MI 1.2 des Bebauungsplans „Dyckerhoff-Gelände“.
Der Geltungsbereich der Änderung umfasst insgesamt eine Fläche von ca. 4.500 m².
Die Abgrenzung des räumlichen Geltungsbereichs ergibt sich aus dem nachfolgenden Lageplan und dem Verzeichnis der Flurstücke.
Lageplan mit Abgrenzung des räumlichen Geltungsbereichs der 1. Änderung des Bebauungsplans „Dyckerhoff-Gelände“ unmaßstäblich

Flurstücke im Geltungsbereich des Bebauungsplans „Dyckerhoff-Gelände“ (Wiedergabe, maßgebend ist die Abgrenzung im Lageplan)
Gemarkung Budenheim, Flur 8
244/10* 244/13* 244/14*
(* Flurstücke liegen nur zu einem Teil im Geltungsbereich des Bebauungsplans)
Planungsanlass / Ziele der Planung
Die BG Grundbesitzgesellschaft mbH & Co. KG entwickelt das ehemalige "Dyckerhoff-Gelände" in Budenheim. Nach Abschluss des Bebauungsplanverfahrens hat sich das Nutzungskonzept für Teile des Gebiets geändert. Im Baugebiet MI 2 sollen auch nicht großflächige Einzelhandelsbetriebe mit den nahversorgungsrelevanten Kernsortimenten „Nahrungs- und Genussmittel, Getränke, Tabakwaren“ sowie „Apotheken“ gem. Sortimentsliste zulässig sein.
Hierzu ist der Bebauungsplan „Dyckerhoff-Gelände“ der Gemeinde Budenheim zu ändern.
Wesentliche Ziele der Planung sind:
- Schaffung der bauplanungsrechtlichen Zulässigkeit von nicht großflächigen Einzelhandels Betrieben im MI2
- Aufwertung der Nahversorgungssituation in Budenheim und im Plangebiet Dyckerhoff-Areal
Ferner soll die Schaffung einer barrierefreien Fußwegeverbindung zwischen den Planstraßen A und B des Neubaugebiets „Dyckerhoff-Gelände“ geschaffen werden, um eine noch bessere Erreichbarkeit der neuen Einzelhandelsbetriebe aus der nahen Wohnbebauung zu ermöglichen.
Öffentliche Auslegung
Der Entwurf des Bebauungsplans mit zeichnerischen und textlichen Festsetzungen sowie der Begründung einschließlich Umweltbericht, Gutachten und Fachbeiträgen sowie den wesentlichen, bereits vorliegenden umweltbezogenen Stellungnahmen sind in der Zeit
vom 09.10.2025 bis 10.11.2025
im Internet unter https://www.budenheim.de – „Aktuelles“ – „öffentliche Auslegung“ – „1. Änderung des Bebauungsplans „Dyckerhoff-Gelände“, https://www.budenheim.de/aktuelles/oeffentliche-auslegung/ sowie unter www.geoportal.rlp.de einsehbar. Im Vergleich zur Bekanntmachung vom 02.10.2025 wird die Dauer der Offenlage um vier Tage erweitert.
Im o. g. Zeitraum werden die Unterlagen auch in der Gemeindeverwaltung Budenheim, Berliner Straße 3, Bauamt, montags bis mittwochs von 07:30 Uhr bis 12:00 Uhr und von 13:00 Uhr bis 15:00 Uhr, donnerstags von 07:30 Uhr bis 12:00 Uhr und von 13:00 Uhr bis 18:00 Uhr freitags von 07:30 Uhr bis 12:00 Uhr nach vorheriger Terminvereinbarung (06139-299-125 oder 06139-299-120 oder per E-Mail: david.menjoulet@budenheim.de oder marius.kapp@budenheim.de) zu jedermanns Einsicht bereitgehalten.
Stellungnahmen können während der vorgenannten Frist elektronisch an david.menjoulet@budenheim.de oder marius.kapp@budenheim.de übermittelt werden oder bei Bedarf auch auf anderem Wege z.B. schriftlich oder zur Niederschrift bei der Gemeindeverwaltung Budenheim, Bauamt, Berliner Straße 3 55257 Budenheim, vorgebracht werden.
Neben dem Entwurf des Bebauungsplans einschließlich der Begründung sind wesentliche, bereits vorliegende umweltbezogene Informationen verfügbar, die umweltbezogene Informationen enthalten:
- Umweltbericht als gesonderter Bestandteil der Begründung mit Ermittlung, Beschreibung und Bewertung der Umweltauswirkungen im Basisszenario, bei Nicht-Durchführung der Planung und bei Durchführung der Planung auf das Schutzgut Mensch, insbesondere bezüglich der Auswirkungen auf den Menschen durch Geräusche.
- Schalltechnische Untersuchung mit Ermittlung und Beurteilung der Planung auf die Verkehrslärmverhältnisse der Planstraße B und der Mainzer Landstraße, Ermittlung der Gewerbelärmeinwirkungen durch die geplanten Nutzungen innerhalb und außerhalb des Plangebietes.
Des Weiteren liegen wesentliche umweltbezogene Stellungnahmen der Öffentlichkeit, Behörden oder sonstigen Trägern öffentlicher Belange oder von Nachbargemeinden zu folgenden Themen vor:
- Stellungnahme des Landesamtes für Geologie und Bergbau Rheinland-Pfalz hinsichtlich Bergbau und Altbergbau, der geologischen Situation des Bodens und Baugrunds und mineralischer Rohstoffe.
- Stellungnahme der Generaldirektion Kulturelles Erbe Rheinland-Pfalz – Direktion Landesarchäologie Mainz hinsichtlich archäologischer Fundstellen entlang der Mainzer Straße und dem Umgang mit den bei Erdarbeiten eventuell anzutreffenden archäologischen Funden.
- Stellungnahme der Struktur- und Genehmigungsdirektion Süd – Regionalstelle Wasserwirtschaft, Abfallwirtschaft und Bodenschutz hinsichtlich der Starkregenvorsorge, dem Grundwasserschutz, der Abwasser- und Niederschlagswasserbeseitigung, dem Bodenschutz.
- Stellungnahme der Schutzgemeinschaft Deutscher Wald hinsichtlich Natur- und Artenschutzes, Boden und Wasserschutz, Landschaftsbild und Biotopvernetzung sowie soziale und ökologische Stadtentwicklung.
- Stellungnahme der Kreisverwaltung Mainz-Bingen – Abteilung Bauen und Umwelt (B-Plan) hinsichtlich Lärm und Fluglärm gesunde Wohn- und Arbeitsverhältnisse
Gemäß § 3 Abs. 2 BauGB wird darauf hingewiesen, dass nicht fristgerecht abgegebene Stellungnahmen unter den Voraussetzungen des § 4a Abs. 6 BauGB bei der Beschlussfassung über den Bebauungsplan unberücksichtigt bleiben können.
Die Verarbeitung personenbezogener Daten erfolgt auf Grundlage der Art 6 Abs. 1 Buchstabe e DSGVO i V. m. § 3 BauGB.
Des Weiteren wird darauf hingewiesen, dass die zum Bebauungsplanverfahren abgegebenen Stellungnahmen in öffentlicher Sitzung beraten werden und somit ggf. personenbezogene Daten, soweit diese für das Bebauungsplanverfahren erforderlich sind, dem Gemeinderat und mithin der Öffentlichkeit zur Verfügung gestellt werden.
Budenheim, 07.10.2025
Gemeindeverwaltung Budenheim
gez.
(Stephan Hinz)
Bürgermeister


